Vertrauen und Wertschätzung
sind das Fundament für Außergewöhnliches

– und das seit über 10 Jahren

UNSERE REFERENZEN

In unserer Referenz-Übersicht können Sie sich ein umfangreiches Bild von ausgewählten, erfolgreich abgeschlossenen Bauprojekten machen.

Mehrfamilienhäuser - Büro- und Gewerbegebäude

Schulterblatt-1

Schulterbaltt – Hamburg

  • Bauvorhaben: Neubau eines MFH mit Laden
  • Baujahr: 2020
  • Statische Berechnung, Schal- und Bewehrungspläne
  • Architekt: Architekturbüro Generalplanung Selcuk Ünyilmaz

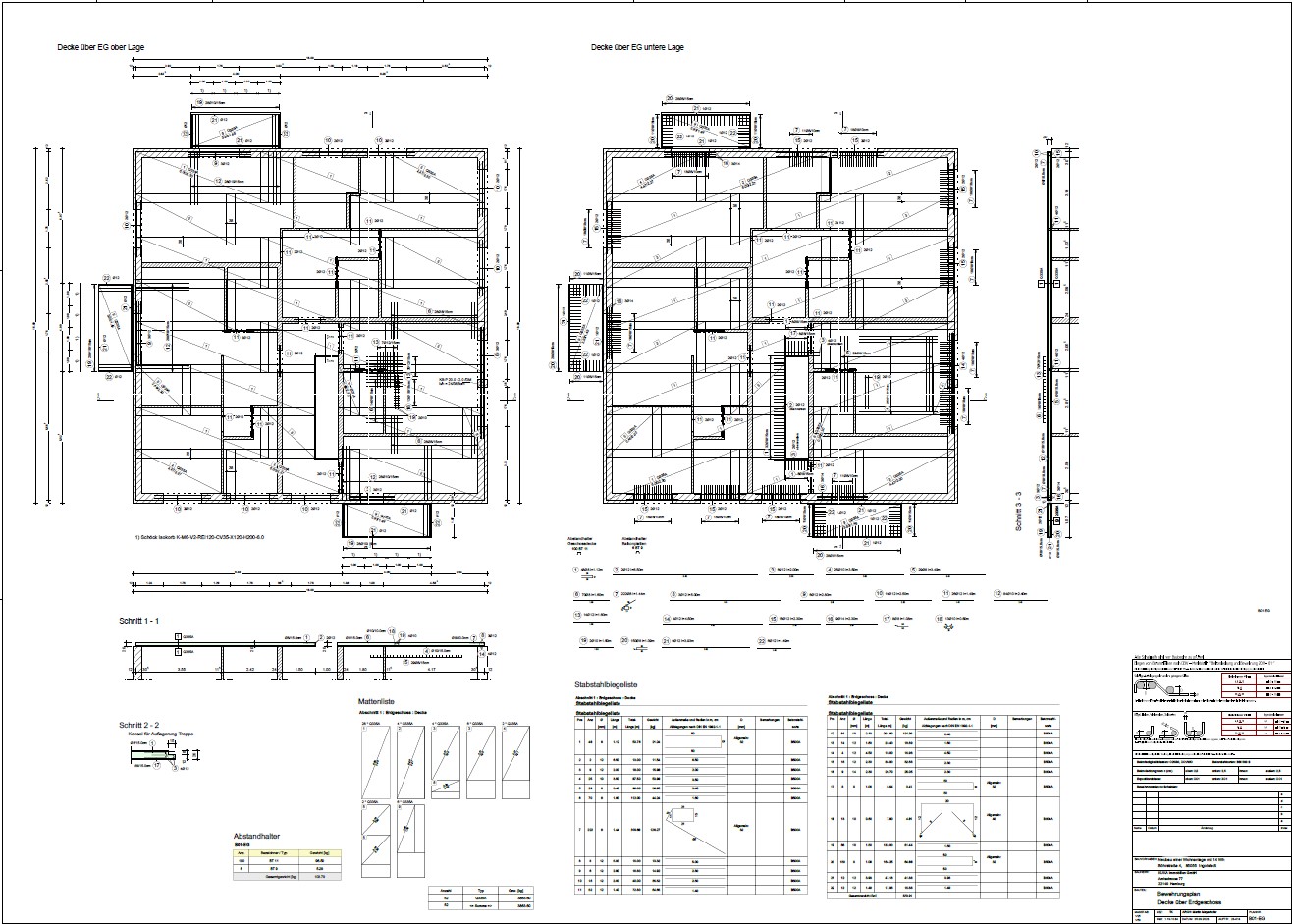
Söhrstraße – Ingolstadt

  • Bauvorhaben: Neubau einer Wohnanlage mit 14 Wohneinheiten
  • Baujahr: 2024
  • Statische Berechnung, Schal- und Bewehrungspläne, Wärmeschutznachweis
  • Architekt: art & more Project UG

Rosenhagen an der Ostsee

  • Bauvorhaben: Neubau Ferienhaus mit 5 Wohnungen
  • Baujahr: 2023
  • Statische Berechnung, Schal- und Bewehrungspläne, Wärmeschutznachweis, Baubegleitung und Bewehrungsabnahme
  • Architekt: Köhler Architekten

Am Bergwerkswald – Gießen

  • Bauvorhaben: Wohnhausaufstockung und Neubau eines Geschäftshauses für einen Fahrradladen
  • Baujahr: 2024
  • Statische Berechnung, Schal- und Bewehrungspläne, Wärmeschutznachweis
  • Architekt: MaszWerk Architektur

Sörensenstr. – Kiel

  • Bauvorhaben: Neubau einer Wohnanlage
  • Baujahr: 2023
  • Statische Berechnung, Schal- und Bewehrungspläne
  • Architekt: Köse Immobilien

Lessingstrasse – Ronshausen

  • Bauvorhaben: Neubau von zwei Doppelhäusern mit je 4 WE
  • Baujahr: 2022
  • Statische Berechnung, Schal- und Bewehrungspläne
  • Architekt: Baubüro Schulte, Dipl.-Ing. Schulte

Industriebauten

Nedderfeld – Hamburg

  • Bauvorhaben: Umbau Werkstatt
  • Baujahr: 2025
  • Statische Berechnung, Schal- und Bewehrungspläne
  • Architekt: Nuckel Part  GmbB 1290 Architekten

Bredowstraße – Hamburg

  • Bauvorhaben: Neubau eines Logistikzentrums
  • Baujahr: 2024
  • Statische Berechnung der inneren Stahlkonstruktionen
  • Architekt: List Ingenieure GmbH

Industriestraße – Kropp

  • Bauvorhaben: Neubau Werkstatt-Büro mit Wohngebäude
  • Baujahr: 2024
  • Statische Berechnung – Wärmeschutznachweis
  • Architekt: Planung s -und Ingenieurbüro Appel Dipl – Ing. Manfred Appel 

Stahl und Holzkonstruktion

Gut Wienebüttel / Lüneburg

  • Bauvorhaben: Umbau eines Pflege- und Therapiezentrums
  • Baujahr: 2025
  • Statische Berechnung der Holzkonstruktion
  • Architekt: Böbs Architekten

Gaußstraße – Hamburg

  • Bauvorhaben: Anbau eines Stahlbalkons
  • Baujahr: 2019
  •  Statische Berechnung
  • Architekt: Flum Architekten

Schnackenburgalle – Hamburg

  • Bauvorhaben: Neubau einer Fluchttreppe
  • Baujahr: 2022
  • Statische Berechnung
  • Architekt: Sven Erik Dethlefs Architektur

Gaußstraße – Hamburg

  • Bauvorhaben: Neubau einer Fluchttreppe
  • Baujahr: 2019
  • Statische Berechnung,
  • Architekt: Flum Architekten

Einfamilienhäuser-Doppelhäuser-Villen

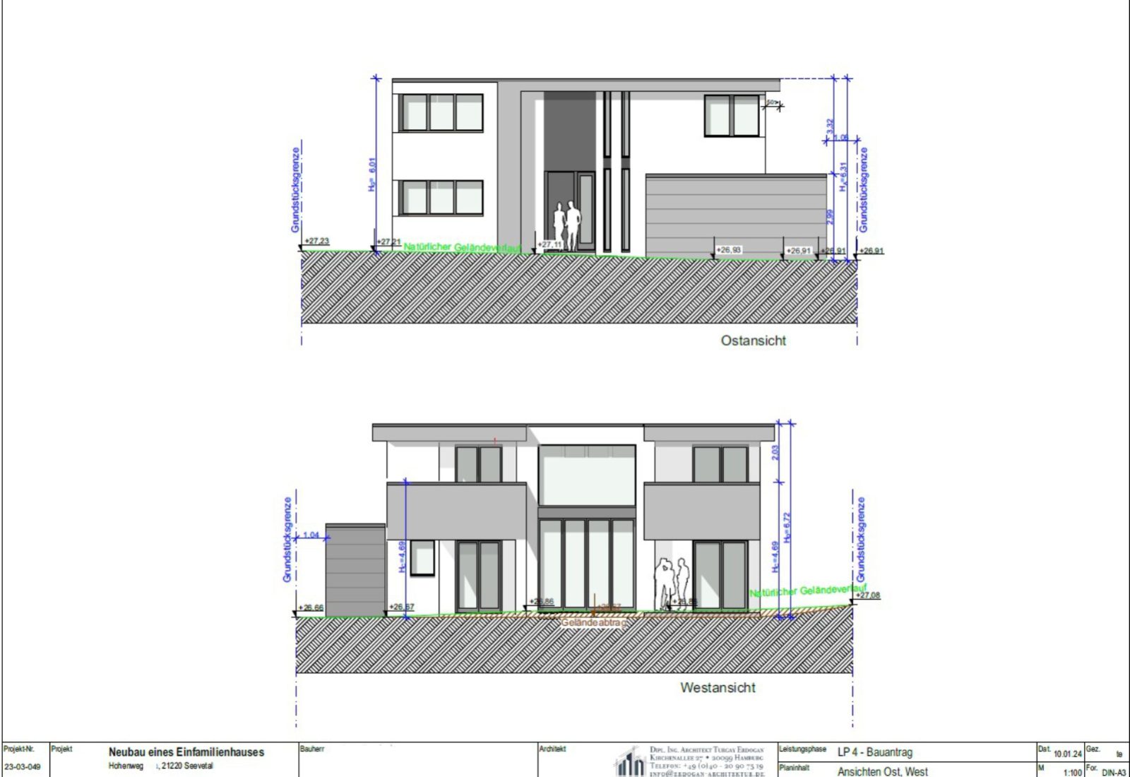
Höhenweg – Seevetal

  • Bauvorhaben: Neubau eines Einfamilienhauses
  • Baujahr: 2025
  • Statische Berechnung, Schal- und Bewehrungspläne, Wärmeschutznachweis
  • Architekt: Erdogan Architektur, Dipl.- Ing. Architekt Turgay Erdogan

Blankenese – Hamburg

  • Bauvorhaben: Neubau Einfamilienwohnhaus
  • Baujahr: 2025
  • Statische Berechnung, Schal- und Bewehrungspläne, Wärmeschutznachweis
  • Architekt: Planungsbüro Geburtig

Alexandrinenstraße – Schwerin

  • Bauvorhaben: Neubau eines Einfamilienhauses
  • Baujahr: 2023
  • Statische Berechnung, Schal- und Bewehrungspläne
  • Architekt: architekten + stadtplaner | Stutz & Winter

Finkenweg Seevetal

  • Bauvorhaben: Neubau eines Einfamilienhauses
  • Baujahr: 2025
  • Statische Berechnung, Schal- und Bewehrungspläne, Wärmeschutznachweis
  • Architekt: Erdogan Architektur, Dipl.- Ing. Architekt Turgay Erdogan

Norder-Ohe – Hamburg

  • Bauvorhaben: Neubau von 2 Einfamilienhäuser
  • Baujahr: 2025
  • Statische Berechnung, Schal- und Bewehrungspläne, Wärmeschutznachweis
  • Architekt: Dr. Natalia Thanheiser

Louis-Stern-Straße – Butzbach

  • Bauvorhaben: Neubau eines Einfamilienhauses
  • Baujahr: 202
  • Statische Berechnung, Schal- und Bewehrungspläne, Wärmeschutznachweis

Umbau / Aufstockung

Neustraße – Hamburg

  • Bauvorhaben: Umbau eines Mehrfamilienhauses
  • Baujahr: 2025
  • Statische Berechnung, Schal- und Bewehrungspläne, Wärmeschutznachweis
  • Architekt:TBR Architekten

Othmarschen – Hamburg

  • Bauvorhaben: Aufstockung Einfamilienhaus
  • Baujahr: 2022
  • Statische Berechnung, Schal- und Bewehrungspläne
  • Architekt: Architekt Tom Finke

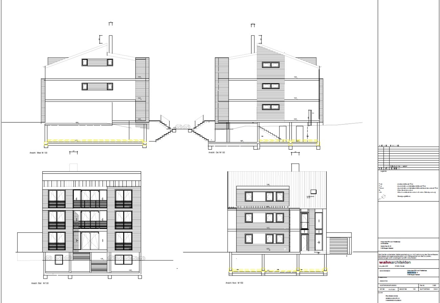
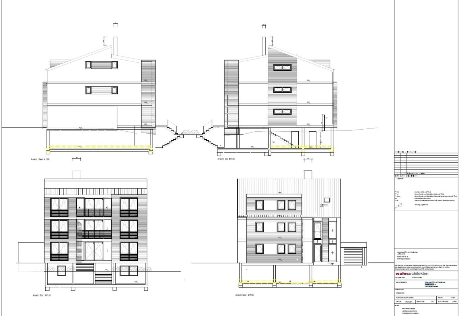
Heinrich-Klerx-Str./ Bergisch Gladbach

  • Bauvorhaben: Umbau eines EFH in ein 5-Familienhaus
  • Baujahr: 2022
  • Statische Berechnung, Schal- und Bewehrungspläne
  • Architekt: wahnarchitekten

Karl-Goerdeler-Str. / Neuss

  • Bauvorhaben: Umbau und Erweiterung eines Reihenendhauses
  • Baujahr: 2022
  • Statische Berechnung
  • Architekt: Kernbau Immobilien

Quickborner Straße / Borstel-Hohenraden

  • Bauvorhaben: Anbau eines Einfamilienhauses
  • Baujahr: 2023
  • Statische Berechnung, Schal- und Bewehrungspläne
  • Architekt: Masoumi Architektur

Moorstücken – Hamburg

  • Bauvorhaben: Aufstockung Bungalow mit 2 Wohneinheiten
  • Baujahr: 2024
  • Unsere Leistungen: Statische Berechnung, Schal- und Bewehrungspläne, Wärmeschutznachweis
  • Adjuva Projektierung & Planung

Harburg – Hamburg

  • Bauvorhaben: Aufstockung und Erweiterung eines Einfamilienhauses
  • Baujahr: 2022
  • Statische Berechnung, Schal- und Bewehrungspläne, Wärmeschutznachweis
  • Architekt: Dipl.- Ing Architekt Andreas Woggan

Tanneck – Hamburg

  • Bauvorhaben: Umbau einer Doppelhaushälfte
  • Baujahr: 2023
  • Statische Berechnung, Schal- und Bewehrungspläne
  • Architekt: TBR Architekten

Rümpler Weg – Bad Oldesloe

  • Bauvorhaben: Einbau Dachgaube in Einfamilienhaus
  • Baujahr: 2024
  • Statische Berechnung
  • Architekt: jk concepts

Marburgerstraße – Gießen

  • Bauvorhaben: Umbau eines Mehrfamilienhauses
  • Baujahr: 2025
  • Statische Berechnung, Schal- und Bewehrungspläne
  • Architekt: Büro Techman

FORDERN SIE JETZT
IHR UNVERBINDLICHES ANGEBOT AN!

Ob Planung, Beratung oder Umsetzung – wir bieten Ihnen Ingenieurleistungen, die präzise auf Ihr Projekt zugeschnitten sind. Senden Sie uns Ihre Anforderungen, und wir erstellen für Sie ein individuelles, unverbindliches Angebot. Dabei profitieren Sie von fundierter Fachkompetenz, praxisnahen Lösungen und effizienter Projektabwicklung Verlassen Sie sich auf unsere Erfahrung – und starten Sie Ihr Projekt mit einem starken Partner an Ihrer Seite.